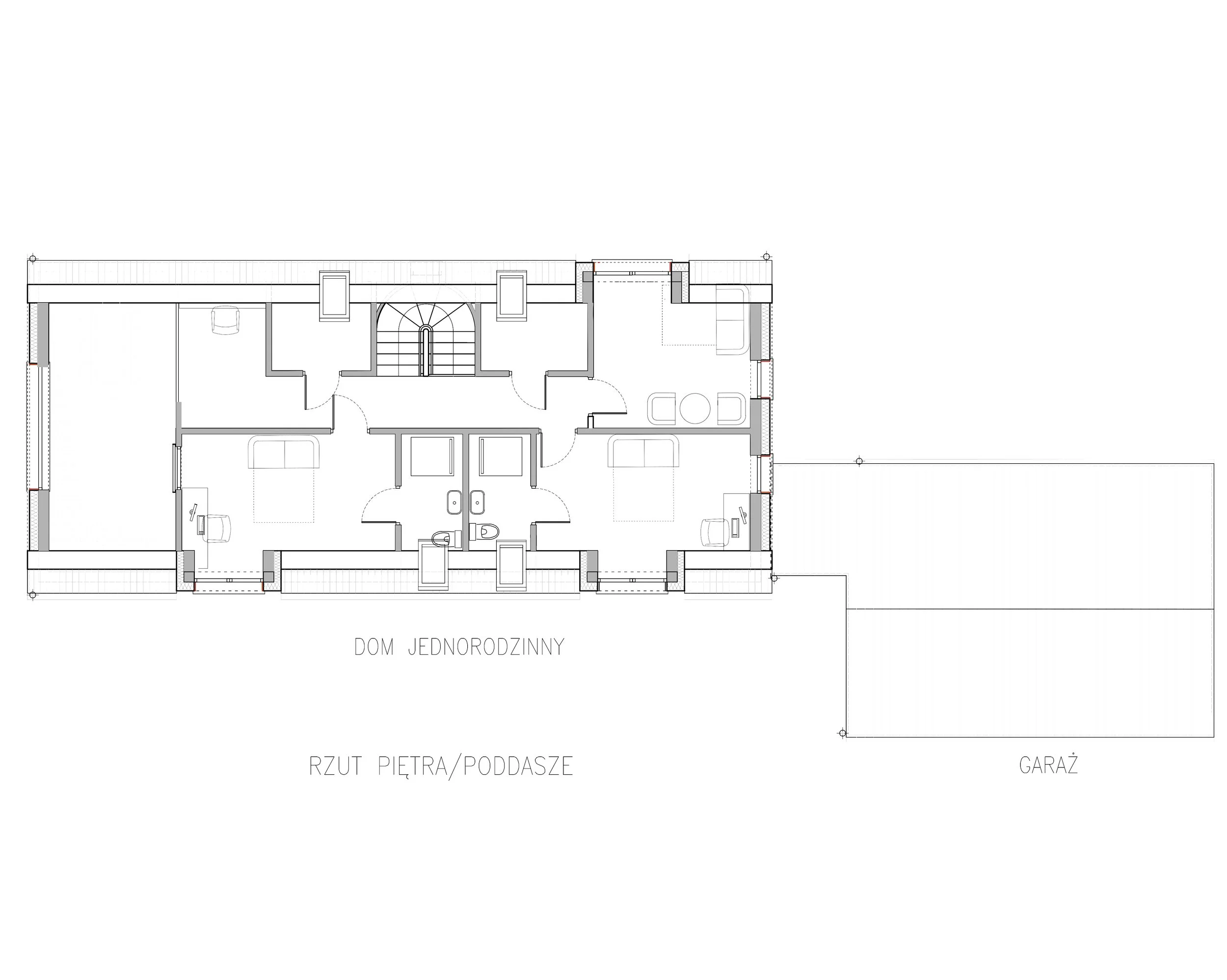
Projekt domu jednorodzinnego w Nowej Rudzie -Zagórze
Inwestor: Prywatny
Projekt: 2025 r, realizacja 2026 r
Powierzchnia:121m2
Autorzy: Beata Szczypka-Marciniak, Edyta Marciniak-Piłkowska
Projekt domu jednorodzinnego w Nowej Rudzie -Zagórze
Inwestor: Prywatny
Projekt: 2025 r, realizacja 2026 r
Powierzchnia:121m2
Autorzy: Beata Szczypka-Marciniak, Edyta Marciniak-Piłkowska