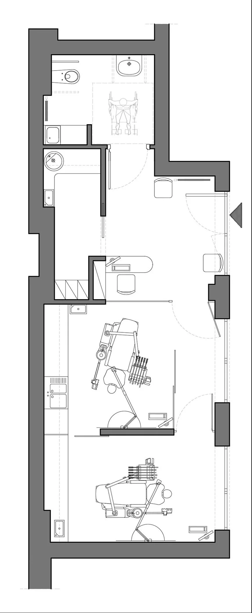
Zmiana sposobu użytkowania istniejącego lokalu na gabinety stomatologiczne Olimpia Dental, Wrocław ul.F.Magellana

Inwestor: prywatny
Zakres: pełnobranżowy projekt budowlany, projekt wnętrz
Projekt : 2017 r, realizacja: 2017 r.
Powierzchnia : 45 m2
Autorzy: Beata Szczypka-Marciniak, Edyta Marciniak-Piłkowska